McKnight Crossings Church of Christ
Download a complete set of blueprints in this .pdf file : McKnightBuilding.pdf , or click on a drawing below to get an individual sheet.
This demo only works in browsers that support CSS Grid Layout. If you can see this message, then your browser isn't supporting Grid. You can try out Grid in Firefox Nightly or other browsers by flipping a flag.
01:CS
02:1/1
03:C1
04:C2
05:C3
06:C4
07:C5
08:L1
09:L2
10:A0.01
11:A0.02
12:A0.03
13:A2.01
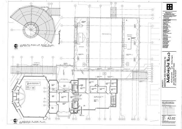
14:A2.02
15:A2.03
16:A3.00
17:A3.01
18:A3.02
19:A3.03
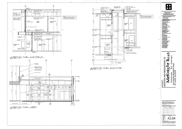
20:A3.04
21:A4.01
22:A4.02
23:A6.01
24:A8.01
25:A8.02
26:A8.03
27:A9.01
28:A9.02
29:S1.0
30:S1.1
31:S2.1
32:S2.1
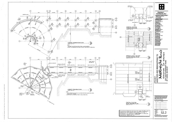
33:S2.2
34:S3.0
35:S4.0
36:S4.1
37:S4.2
38:S5.0
39:FS1
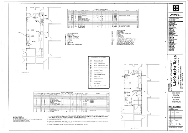
40:FS2
41:MD1.1
42M1.1
43:M2.1
44:M3.1
45:M4.1
46:PD1.1
47:P1.1
48:P1.2
49:P2.1
50:ED1.1
51:E0.1
52:E1.1
53:E1.2
54:E1.3
55:E2.1
56:E3.0
57:E3.1
58